Free Direction Sense Practice Test 5 | Reasoning Quiz for Exams

This Direction Sense Practice Test 5 set includes reasoning direction-based questions to strengthen logical thinking. Practising these direction sense questions improves analytical ability.

Directions Practice Test 5

Instructions

Please read the following instructions carefully before attempting the quiz:

  • 📖 Read the Question carefully before answering the question.
  • ⏳ Try to manage your time effectively.
  • ✅ Each question has only one correct answer.
  • ❌ There is no negative marking (if applicable — adjust if you have).
  • 🔁 Do not refresh the page while attempting the test.
  • 📊 Your score will be displayed immediately after submission.
  • 📚 After completing this test, attempt the remaining practice sets for better improvement.

1 / 10

Directions: Study the following information carefully and answer the below questions.
Point J is 8m east of point P. Point N is 3m south of point S which is 4m east of point I. Point D is 7m south of point I. Point M is 4m south of point P and 11m west of point L. Point J is west of point N and north of point D.

Q. In which direction is point S with respect to point M?

2 / 10

Directions: Study the following information carefully and answer the questions given below.
Somu starts walking from his house towards the north for 20m and then takes a right turn to walk for 30m. Then he walks towards the south for 35m and then walks for 15m after taking a left turn. Finally, he walks towards the direction in which he started the journey initially for 15m to reach a shop.

Q. How far is the shop from Somu’s house

3 / 10

Directions: Study the following information carefully and answer the questions given below.
A car from point P travels towards the east for 5 km. After taking a right turn from point Q, travels 8 km to reach point R where it takes a left turn. Travelling for 5 km in the same direction, the car takes a left turn from point S and travels for 14 km. Then the car takes a right turn from point T and travels for another 3 km and stops at point U.

Q. What is the shortest distance between the points Q and U?

4 / 10

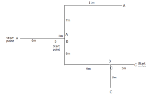
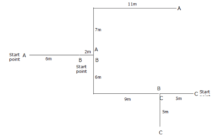
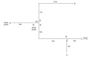
Directions: Study the following information carefully and answer the below questions.
A starts walking towards the east. After walking 6m he met B and both of them walk 2m towards the east. Then B takes the right turn and walks for 6m. A takes the left turn and walks 7m then he takes the right turn and walks 11m and stops. B takes the left turn and walks 9m and stops. C walks 5m towards the west and met the B’s final point where he takes the left turn and walks for 5m and stops.

Q. C’s ending point is in which direction with respect to B’s starting point?

5 / 10

Directions: Study the following information carefully and answer the questions given below.
Somu starts walking from his house towards the north for 20m and then takes a right turn to walk for 30m. Then he walks towards the south for 35m and then walks for 15m after taking a left turn. Finally, he walks towards the direction in which he started the journey initially for 15m to reach a shop.

Q. If Ramu’s house is 25m to the west of the shop, what is the distance and direction of Ramu’s house with respect to Somu’s house?

6 / 10

Directions: Study the following information carefully and answer the questions given below.
Somu starts walking from his house towards the north for 20m and then takes a right turn to walk for 30m. Then he walks towards the south for 35m and then walks for 15m after taking a left turn. Finally, he walks towards the direction in which he started the journey initially for 15m to reach a shop.

Q. In which direction is Somu facing after reaching the shop?

7 / 10

Directions: Study the following information carefully and answer the questions given below.
A car from point P travels towards the east for 5 km. After taking a right turn from point Q, travels 8 km to reach point R where it takes a left turn. Travelling for 5 km in the same direction, the car takes a left turn from point S and travels for 14 km. Then the car takes a right turn from point T and travels for another 3 km and stops at point U.

Q. If the petrol cost is Rs.76/litre and the mileage of the car is 5kmpl, then what will be the total cost of the entire journey?

8 / 10

Directions: Study the following information carefully and answer the below questions.
Point J is 8m east of point P. Point N is 3m south of point S which is 4m east of point I. Point D is 7m south of point I. Point M is 4m south of point P and 11m west of point L. Point J is west of point N and north of point D.

Q. What is the shortest distance between point L and point J?

9 / 10

Directions: Study the following information carefully and answer the below questions.
A starts walking towards the east. After walking 6m he met B and both of them walk 2m towards the east. Then B takes the right turn and walks for 6m. A takes the left turn and walks 7m then he takes the right turn and walks 11m and stops. B takes the left turn and walks 9m and stops. C walks 5m towards the west and met the B’s final point where he takes the left turn and walks for 5m and stops.

Q. Finally in which direction is B with respect to A?

10 / 10

Directions: Study the following information carefully and answer the below questions.
A starts walking towards the east. After walking 6m he met B and both of them walk 2m towards the east. Then B takes the right turn and walks for 6m. A takes the left turn and walks 7m then he takes the right turn and walks 11m and stops. B takes the left turn and walks 9m and stops. C walks 5m towards the west and met the B’s final point where he takes the left turn and walks for 5m and stops.

Q. If C takes the right turn from the final position and walks for 17m, then in which direction is A’s starting point with respect to C?

Your score is

The average score is 0%

0%

Exit

Solve more direction sense practice questions and reasoning questions to build exam confidence. These direction sense test questions are useful for bank and competitive exams.